Краткая вводная проекта:
Заказчику нужен был шкаф для питания потребителей цеха на 380 и 220В переменного тока.
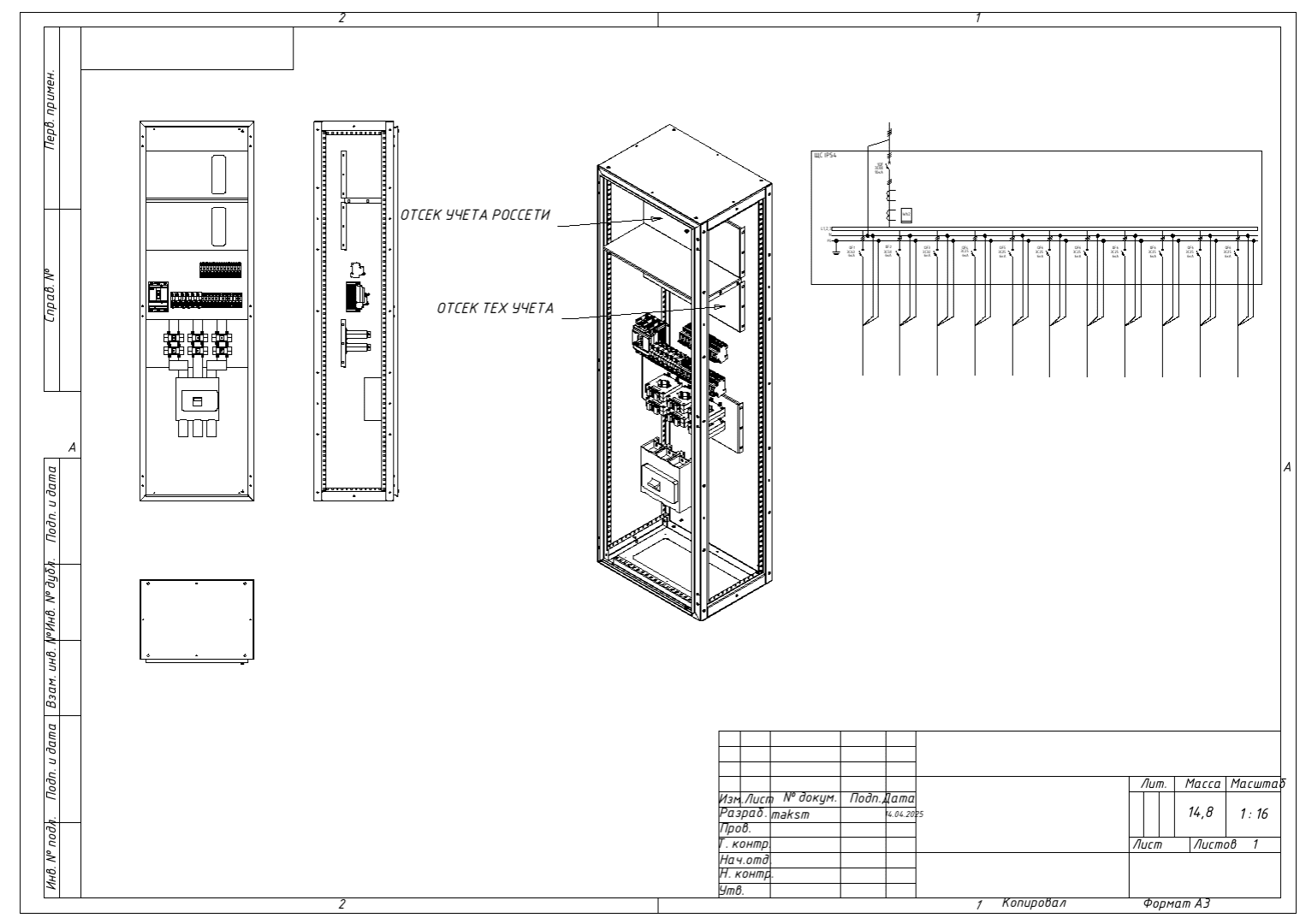
Что сделали
Мы принялись за сбор информации о потребителях и входных данных с трансформатора - какая мощность того или иного оборудования. Исходя из этого выбрали вводное устройство с уставкой 50кА и номиналом 630А. Для экономии бюджета заказчика решили делать на алюминиевых шинах, они также легче и быстрее обрабатываются.
Заранее была сделана 3D-модель шкафа и сборщик по заранее готовым чертежам,
В процессе увидели, что нужно для подключения потребителей оставить между автоматами место побольше. Одни потребители могли задевать питающие провода, поэтому мы увеличили промежуток между автоматами потребителей. Также спроектировали и сделали места для закрепления кабелей, уходящих в поле.
Заранее была сделана 3D-модель шкафа и сборщик по заранее готовым чертежам,
В процессе увидели, что нужно для подключения потребителей оставить между автоматами место побольше. Одни потребители могли задевать питающие провода, поэтому мы увеличили промежуток между автоматами потребителей. Также спроектировали и сделали места для закрепления кабелей, уходящих в поле.
И установили счетчик и две испытательные коробки.
У заказчика было особое условие - сетевая компания сама установит счётчик и трансформаторы тока. Нам оставалось реализовать технический учёт и сделать шины разборные, для удобства добавления трансформаторов. Мы также смонтировали заранее провода и монтажную коробку для подключения к оборудованию сетевой компании.
У заказчика было особое условие - сетевая компания сама установит счётчик и трансформаторы тока. Нам оставалось реализовать технический учёт и сделать шины разборные, для удобства добавления трансформаторов. Мы также смонтировали заранее провода и монтажную коробку для подключения к оборудованию сетевой компании.
Результат работы
Мы уменьшили количество щитов с 2х до одного и разместили вводное оборудование, оборудование учёта и оборудование защиты потребителей в одном шкафу с возможностью добавления оборудования учёта.